Imagine 59

Casă 3 camere, curte comună, Stadion CFR, cart. Gruia, Cluj-Napoca

ID: P117 Cluj-Napoca, Gruia 13
245.000€
Camere
3
Suprafata utila
73.90 mp
Bai
1
Descriere
Apartament la casă spațios și recent renovat, situat în inima cartierului Gruia, pe strada Romulus Vuia, la doar 150 de metri de stadionul CFR (Dr. Constantin Rădulescu).

Această proprietate face parte dintr-o casă divizată în două apartamente, beneficiind de o curte comună generoasă, cu o suprafață totală de teren de 788 m². Din aceasta, aproximativ 700 m² reprezintă teren liber, împărțit echitabil între cele două unități.

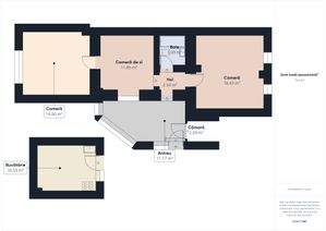
Apartamentul disponibil pentru vânzare dispune de 3 camere confortabile și are o suprafață utilă de 73.9 m², fiind ideal pentru o familie sau pentru investiție. Recent renovat, imobilul vă întâmpină cu îmbunătățiri de ultimă oră: izolație termică, instalații electrice și sanitare schimbate, precum și un spațiu pregătit în antreu pentru amenajarea unei bucătării moderne.

Un plus valoros îl reprezintă anexa din curte, actualmente utilizată ca bucătărie și spațiu de depozitare în pod, oferindu-vă flexibilitate și spațiu suplimentar.

Localizat într-unul dintre cele mai râvnite cartiere din Cluj-Napoca, Gruia se mândrește cu un scor excelent în indicele T.R.A.I., fiind pe locul 4 la nivel național și primul în oraș, promițând un stil de viață echilibrat, aproape de natură și facilități urbane.

Nu ratați această șansă unică de a vă bucura de confort, spațiu și o locație de invidiat în Cluj-Napoca. Pentru mai multe detalii sau pentru a programa o vizionare, vă invităm să ne contactați!
Caracteristici
  • ID:P117
  • Nr. camere:3
  • Nr. dormitoare:2
  • S. utila:73.90 mp
  • S. teren:788.00 mp
  • Nr. bucatarii:1
  • Nr. bai:1
  • An renovare:2020
  • Structura rezistenta:Caramida
  • Orientare:Mixta
Video
Tur virtual
Specificatii
Curent
Apa
Canalizare
Gaz
CATV
Telefon
Acces internet
Fibra optica
Centrala proprie
Calorifere
Izolatie Exterior
Vopsea lavabila
Faianta
Parchet
Gresie
Ferestre PVC
Ferestre Termopan
Usa intrare PVC
Usa interior Celulare
Pivnita
Apometre
Contor gaz
Complet mobilat
Curte comuna
Gradina
Localizare
Sorin Sucală
Broker/Owner REALTOR®
Esti interesat de aceasta proprietate ?
Proprietati similare
Imagine 242
TOP 0% comision
Proprietate unică, în zonă verde și liniștita
Cehu Silvaniei 249.000€
4 camere 327mp